top of page
projekti
ured
kontakt
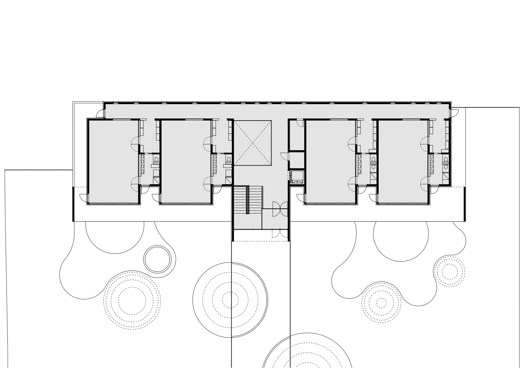
DJEČJI VRTIĆ TRILJ
Dječji vrtić i jaslice
KOAUTORI S
LIVE ARCHITECTURE d.o.o.
LOKACIJA:
Trilj
GODINA:
2018. (projekt), 2021. (izgradnja)
POVRŠINA:
3045 m2 (parcela), 856 m2 (GBP)
FAZA:
Izgrađeno
© MAT studio 2023.
bottom of page